
HISTORIA DE LA CASA
El sabor de una verdadera casona de pueblo
La casa del Jardín de San Bartolomé se levanta junto a la iglesia de Carrascosa del Campo, en el viejo barrio de Carralcázar, por donde pasaba una calzada romana. Allí estuvo antiguamente la Plaza del Mercado. Estos terrenos pertenecientes a la iglesia fueron comprados con motivo de la desamortización de Mendizábal y sobre ellos se construyó la Casa de los Escribanos. La casa actual fue construida en 1840 y estuvo en uso hasta los años 70. Permaneció cerrada durante 30 años hasta su restauración a comienzos del siglo XXI. Fue adquirida por un gran emprendedor para convertirla en casa rural, respetando en su reconstrucción hasta los menores detalles de su primitiva estructura. La casa debe su nombre a la existencia de una ermita dedicada a este Santo en la antigua Plaza del Mercado.
La casa tiene 800m2 divididos en tres plantas que giran entorno a un patio típico cubierto por una claraboya.
Posee además un jardín de 500m2 con cesped y abundantes árboles, porche y zona de barbacoa.
Categoría Tres Espigas: máxima calificación de casas rurales en Castilla-La Mancha
Capacidad 24 personas.
Planta baja:
1 habitación doble con baño
1 habitación cuádruple con baño.
Primera planta:
2 habitaciones dobles con baño
1 habitación de matrimonio con baño
1 habitación cuádruple con baño.
Segunda planta en la antigua buhardilla:
3 habitaciones dobles y 1 de matrimonio con dos baños a compartir.
Cada dormitorio es único, con una cuidada decoración en la que se ha prestado especial atención a los detalles.
Entre las diversas y variadas zonas comunes, destacan una acogedora biblioteca con chimenea, un salón también con chimenea abierto a una sala de juegos que cuenta con juegos de mesa, cuentos, disfraces, una televisión y todo lo necesario para que los pequeños lo pasen en grande, un comedor junto a una cocina totalmente equipada
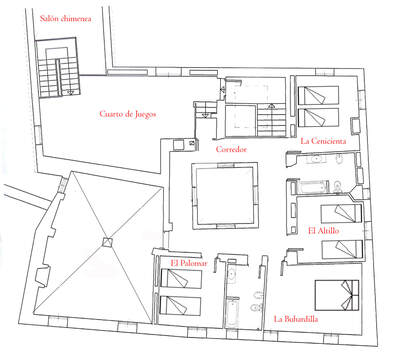
Este plano te ayudará a conocer mejor la casa
Planta Baja

Planta Primera

Planta Segunda

La Cueva: Habitación doble con baño
La Herrería: Dos habitaciones comunicadas con un baño.
Entreplanta: Habitación doble con baño
El Jardín: Habitación de matrimonio con baño
Las Flores: Habitación doble con baño
Las Alcobas: Habitación matrimonio comunicada con doble que comparten baño.
La Cenicienta: Habitación doble con baño compartido
El Altillo: Habitación de matrimonio con baño compartido
La Buhardilla: Habitación doble con baño compartido
El Palomar: Habitación doble con baño compartido
Para ver Precios y Disponibilidad pinchar aquí
